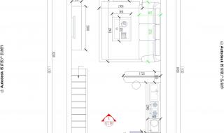
大兴首邑溪谷怎么样 首邑溪谷户型图

一、大兴首邑溪谷怎么样性价比不错,适合年轻朋友和第一次买房的人,买一层送一层,实际得房后相当于每平米才一万三左右,现在大兴的均价基本在一万九。 二、首邑溪谷真实现状北京大兴首邑溪谷得立方空间是高层户型,从38到68平米的都有,层高4.8米

一、大兴首邑溪谷怎么样

性价比不错,适合年轻朋友和第一次买房的人,买一层送一层,实际得房后相当于每平米才一万三左右,现在大兴的均价基本在一万九。

首邑溪谷户型图

二、首邑溪谷真实现状

北京大兴首邑溪谷得立方空间是高层户型,从38到68平米的都有,层高4.8米,别看听起来小,实际很划算,上下两层,开发商给隔好的,都能做成两居室使用,而且价格上优势很大,总价120万起,这么算下来首付也就40万左右,比较划算。

首邑溪谷户型图

满易梦

满易梦

我是【佐川百科网】的作者:满易梦,希望本篇文章《大兴首邑溪谷怎么样 首邑溪谷户型图》你会喜欢!

微信扫一扫,分享到朋友圈

热线 热线

13888887357